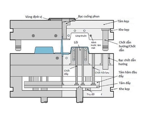
Cấu tạo máy ép phun - Phần Khuôn ép phun Khuôn ép phun hay còn gọi là Khung kim loại để ép phun nhựa thành hình dạng mong muốn Cấu tạo k...